Ample Off Street Parking Via a Driveway And Single Garage
Integrated Kitchen Appliances With Room To Add Your Own Freestanding Appliances
Log Burner For Those Winter Months
Close By To Numerous Amenites
In The Catchment For Well Regarded Schools
EPC Rating - C
Freehold - Council Tax Band - C
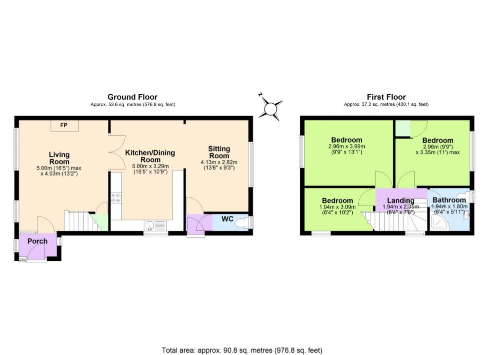
Royston and Lund are delighted to bring to the market this Immaculately Presented three bedroom Semi Detached Corner Plot property located on Laburnum Avenue in Keyworth. Situated close by to numerous amenities such as a local shops and pubs. Not to mention being the the catchment area for well regarded schools and having excellent transport links into the surrounding villages and into Nottingham City Centre. This property would be a great fit for first time buyers or a growing family. Ground floor accomodation comprises a porch upon entry which leads into the living room which features front aspect window flooding the room with natural light, pieced together with a stylish fireplace and log burner. Off from the living room the the kitchen dining room, which has integrated appliances such as an oven, hob and extractor fan with more than enough room from freestanding appliances. The adjoined dining area has more than enough room for the family. Moving through the kitchen you come into the cozy snug which overlooks the rear garden. The ground floor is completed by a downstairs WC and under stair storage. To the first floor there are three well proportioned double bedrooms. The master bedroom overlooking the front garden and bedroom two has a storage cupboard and overlooks the rear. Bedroom three is a further double which sits over the stairs. Facing the property there house itself sits on a corner plot and benefits from section gardens from the front side and rear making the overall plot size larger than average for its area. To the front there is a lawned area with a mature hedgerow and standing birch tree. To the corner is a a further lawned space with allotted flower beds. The rear garden is generous in size and showcases low maintenance artificial grass, patio and stones along with a decking and pergola providing space for summer seating. To the rear of the garden is the single garage.
Keyworth offers an attractive mix of village charm and everyday convenience that appeals strongly to home buyers, particularly families and commuters. The village benefits from a range of local amenities including shops, cafés, pubs, schools, sports clubs and a modern health centre, all within a friendly and walkable community setting. Good road and bus links provide easy access to Nottingham and surrounding towns, making it ideal for those who want a quieter place to live without losing connectivity. With a variety of housing from traditional cottages to modern family homes, plenty of green spaces, and a calendar of community events that foster a welcoming atmosphere, Keyworth presents itself as a well-rounded and desirable place to settle.