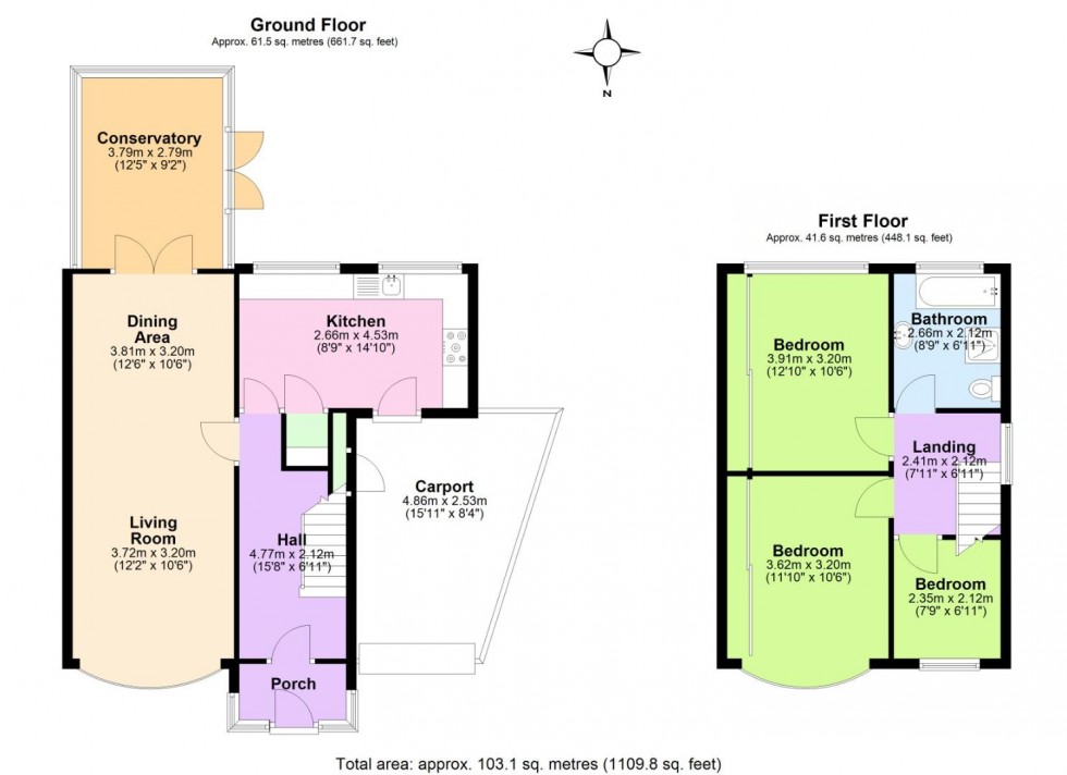
A well appointed three bedroom detached property located in the desirable Wilford. Situated close by to numerous amenities such as local shops, pubs and restaurants being so close to Central Avenue. Not to mention being in the catchment area for well regarded schools and having excellent transport links via the A60 and A52 with further benefit of Wilford tram stop being a short walk away. This property would be a great fit for a growing family or first time buyers. Ground floor accomodation comprises of an entrance hall that grants access to the main reception room, kitchen and stairs to the first floor. The living room is a great size with a front aspect bay window flooding the room with natural light pieced together with an adjoined dining area with more than enough room to accomodate guests, furthermore leading to a conservatory area that grants access to the rear garden. The kitchen is ample in size with integrated kitchen appliances such as an oven, hob and extractor fan with room to add further freestanding appliances. There is also a pantry cupboard in the kitchen and back door leading to the carport for added convenience. To the first floor there are three well proportioned bedrooms, the principle bedroom and bedroom two both have the benefit of full width sliding wardrobes. The third bedroom is an over stair single. All bedrooms share a four piece bathroom with a separate bath and shower along with a wash basin and WC. Facing the property there is ample off street parking via a double driveway leading into a single car port to the right hand side. To the rear of the property the owner has completely re landscaped the rear garden space creating block paving seating area, glass panelled balcony area and further decking to the right aspect creating a sun trap for those summer months. To the back of the garden area is a raised flower bed with mature shrubbery and as a whole is enclosed by fenced borders.
Map
Floorplan
Arrange a viewing
Your Explicit Consent
You must be 18 years or older to register for our property matching service through this website ("Service").
From time to time we will send you information about properties that we feel may be of interest to you.
If you would like to receive information from us, please indicate this by selecting the appropriate box(es) below:
Our Privacy Policy and Notice describes how we use your data, who we might share it with and what rights you have.